Products    
  Water-soluble fertilizer production line

Product introduction£º

introduction£º

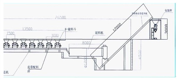
    This production line consists of raw material storing system ¡ú screw feeding equipment ¡ú batching bucket metering ¡ú mixing equipment ¡ú finished product conveying equipment ¡ú automatic packaging equipment.

    By this form of production line, batching part and mixing part of the system integrally installed under the ground, effectively saving space. And covers a small area, convenient and fast ground feeding, safe operation. High mixing uniformity, effectively reduce workers labor. Small dust and strong adaptability, it is suitable for a variety of harsh on-sit environment. The highest precision domestically, reaching 0.2%.